Change of use

Change of use

Do you want to change how you use land or a building? Sometimes a planning permit isn’t required! Conversely, transforming a dwelling into a nightclub in a quiet suburban street most probably wouldn’t be supported. Whether you’re relocating a business premises or setting up a new business we can help with change of use applications and associated signage and car parking requirements.

Town Planners Melbourne clearly outlines the exact change of use by preparing existing and proposed floor plans/elevations/site plans and an accompanying planning report to ensure council are able to ascertain appropriateness as quickly as possible.

Dwelling with Residential Zone

Office
Medical Centre
Bed & Breakfast
Childcare Centre
Workshop

Shop with Commercial Zone

Residential
Bar / Nightclub
Exhibition Space
Recreation Facility
Education

Factory/warehouse with Industrial zone

Research Centre
Pilates / Yoga
Car Dealership
Transfer Station
Event Space

Pilates Studio

Commercial zoned shop Change of Use application for a Pilates Studio example.

Existing Shop Floor Plan
Existing Shop Floor Plan
Existing Shop Elevation
Proposed Pilates Studio Elevation showing proposed signage

Car Hire Facility

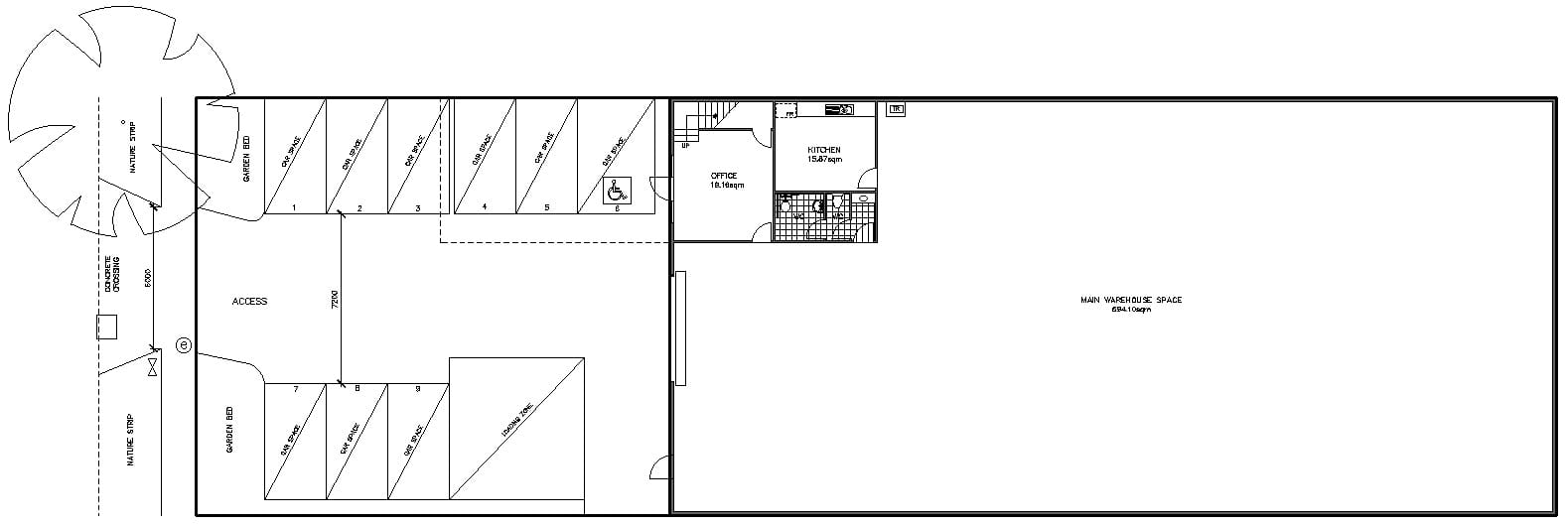
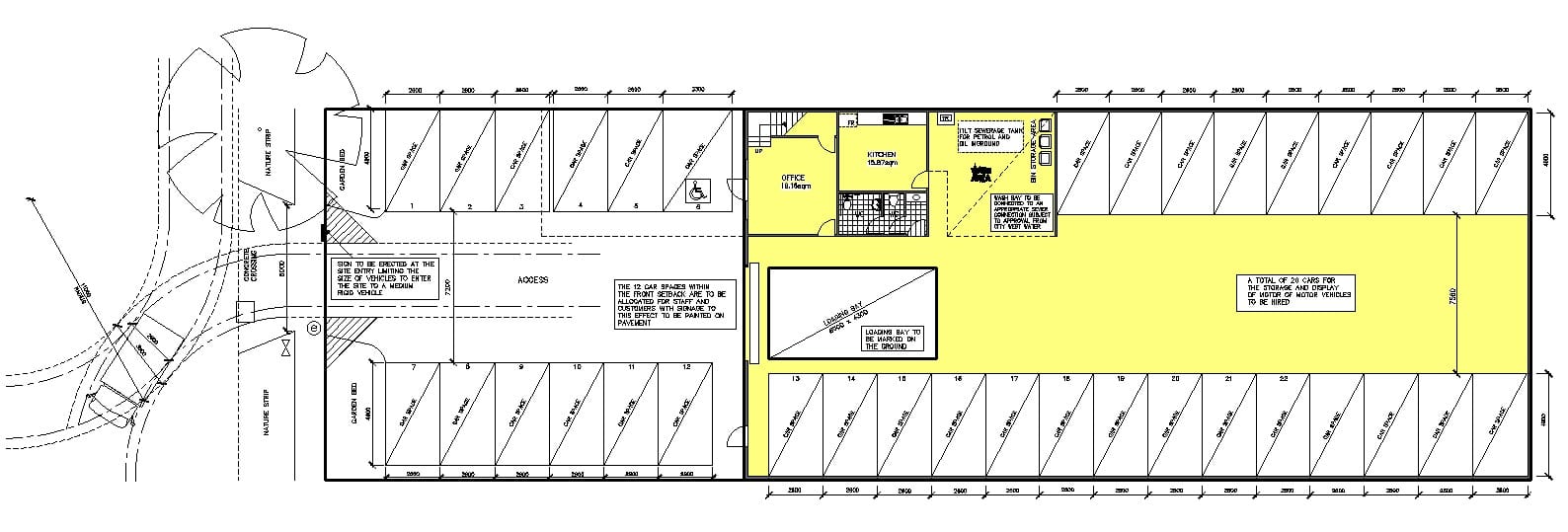
Industrial zoned warehouse Change of Use application for a Car Hire Facility example. Land use terms play an important role in determining the amount of car parking required whilst the regulations set out car parking and access dimensions.

Existing Warehouse Floor/Site Plan
Proposed Care Hire Facility Floor/Site Plan
Existing Warehouse Floor Elevation
Proposed Care Hire Facility Elevation
Zoning determines whether a planning permit is required for a business identification sign depending on its size, location and/or illumination. This example involved multiple signage triggering a planning permit requirement because of its size and illumination.

Medical Centre

Residential zoned dwelling Change of Use application for a Medical Centre example. This application did not involve associative business identification signage however a Reduction in Car Parking applied.

Existing Dwelling Floor/Site Plan
Proposed Medical Centre Floor/Site Plan

Material Recycling Facility

Industrial zoned warehouse Change of Use application for a Material Recycling Facility example.

Proposed Floor Plan demonstrating compatibility between forklift and pedestrian traffic
Proposed Site Plan showing turning circles associated with delivery of raw materials
Waste Management Plan
Proposed Elevation illustrating proposed the size of business identification signage proposed does not trigger a planning permit

Physiotherapist and Minor Sports and Recreation facility

Industrial zoned warehouse Change of Use application for a Physiotherapist and Minor Sports and Recreation facility example.

Existing Warehouse Floor Plan
Proposed Physiotherapist and Minor Sports and Recreation facility Floor Plan
Proposed Elevation illustrating proposed the size of business identification signage proposed does not trigger a planning permit
Proposed Physiotherapist and Minor Sports and Recreation facility Site Plan demonstrating waste collection trucks are able to enter and exit the site in a forward’s direction

Food Trucks

Priority Development zoned Shop Car Park Change of Use application for multiple Food Trucks example.

Neighbourhood and Site Description Plan
Waste Management Plan
Existing Carpark Site Plan
Proposed Food Trucks illustrating compatibility of vehicular and pedestrian traffic
Item added to cart.
0 items - $0.00